Home > Company > PlanSwift
PlanSwift

PlanSwift

PlanSwift is the fastest and easiest takeoff software available.

PlanSwift Overview

PlanSwift is a leading digital takeoff and estimating software designed for construction professionals. It streamlines measuring, counting, and estimating, helping contractors save time, reduce errors, and increase bid accuracy.

More About PlanSwift

Main perks

  • Point & Click takeoff for areas, lengths, volumes, and perimeters
  • Drag & Drop material and labor assemblies
  • Instant cost calculations (material, waste, and labor)
  • Export to Excel or generate built-in reports
  • Customizable templates for different trades
  • Compatible with multiple file formats (PDF, TIFF, CAD, etc.)
  • Plugins & add-ons for specific construction needs

Industry-Specific Benefits:

  • General Contractors: Manage large-scale bids efficiently with accurate calculations
  • Concrete & Masonry: Single-click slab dimension takeoffs with automatic material projection
  • Electrical & Plumbing: Accurate counts of conduits, fixtures, and piping
  • HVAC & Framing: Quick linear measurements and volume calculations

Final thoughts 

PlanSwift simplifies the preconstruction process by allowing contractors to upload digital blueprints and perform takeoffs in minutes. With its point-and-click interface, users can instantly measure dimensions, count items, and generate detailed estimates. The drag-and-drop feature lets you apply pre-configured assemblies of materials, labor, and waste for automatic cost calculations.

Pros & Cons

Pros:

Offers a range of useful features for construction estimating and take-offs, making it valuable for professionals in the industry.

PlanSwift offers a range of useful features for construction estimating and take-offs, making it valuable for professionals in the industry.

Users appreciate the ability to create custom templates, which helps in standardizing the estimating process across projects​.

The automation tools, such as Auto-Count, save significant time, particularly for large, repetitive projects​

Cons:

Some users experienced crashes or slow performance when handling large projects.

A significant number of users report dissatisfaction with the customer support.

One user reported difficulties with file storage, mentioning that Software files were stored in a location on their computer that wasn't routinely backed up.

Some users experienced problems with specific features, such as the Auto count tool, indicating that there may be occasional bugs or issues with functionality.

Company

PlanSwift

Contact

1-888-752-6794

Headquarter

520 North Marketplace Drive, Suite 140. Centerville, UT 84014

Follow Us

PlanSwift Features

Customizable Trades Contractor Tools Project Management Custom Assemblies Detailed Reporting Remote Work Project Tracking Data Security Cloud Storage Client Communication

PlanSwift Demo & Screenshots

How to use PlanSwift

PlanSwift Dashboard

PlanSwift Dashboard

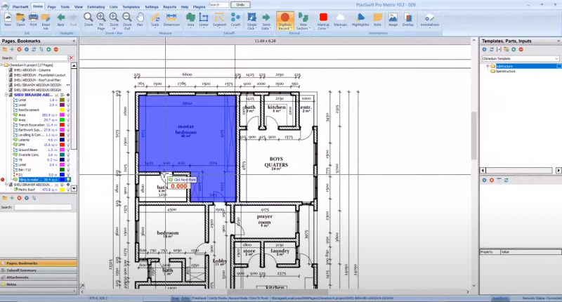
PlanSwift Project

PlanSwift Project

PlanSwift Pricing

PlanSwift Pricing Screenshot

*Price last updated on Sep 16, 2025. Visit planswift.com's pricing page for the latest pricing.

PlanSwift Reviews

PlanSwift Category

PlanSwift Alternatives